Ramsbottom
Pearson Ferrier Ramsbottom
74 Bridge Street
Ramsbottom
BL0 9AG
MAKE AN ENQUIRY

Eden Avenue, Edenfield, Ramsbottom

Offers Over£230,000
4 bedrooms
1 bathroom
1 reception

Property Features

  • semi detached dormer property
  • three bedrooms
  • requires comprehensive scheme of refurbishment
  • no onward chain
  • popular location
  • parking & gardens
  • close to m-way network

Property Summary

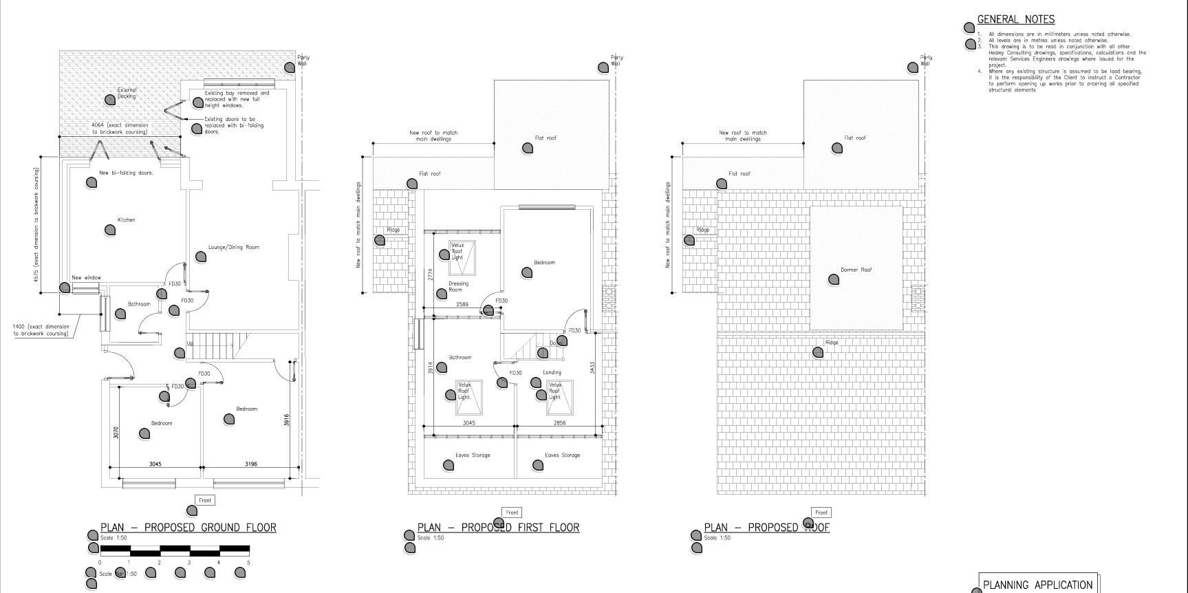
Eden Avenue, Edenfield is a substantial, semi detached dormer property located in this popular residential area offered for sale with no onward chain and with views over neighbouring land. The house is within easy reach of the village centre and a short drive to the motorway network and nearby Ramsbottom and Rawtenstall town centres. The house has been partially stripped out and is need of a comprehensive scheme of refurbishment and has planning permission to be extended, the new layout is shown on the gallery of images, the present owners have carried out significant strengthening and rebuilding to the driveway retaining wall. The accommodation could comprise, entrance hall, large lounge & dining room, kitchen, two bedrooms and a bathroom, first floor main bedroom suite with dressing room and second bathroom. Outside there is a garden forecourt and a side driveway leading to rear gardens and patio area overlooking adjoining fields.
Council Tax Band D/Freehold property

Full Details

Entrance Hall
L-shaped hallway with stairs to the first floor.

Lounge & Dining Room
Window to the rear and patio door to the side.

Kitchen
Windows to the rear and side, door to the rear.

Bedroom
Walk in closet, window to the front.

Bedroom Two
Window to the front.

Bathroom
Window to the side.

First Floor

Bedroom One
Proposed main bedroom with dressing room and additional bathroom.

Outside
Outside there is a garden forecourt and a long side driveway leading to a paved rear patio and steps down into further gardens.

Read more
READ MORE READ LESS

Location

Floorplan

Sell your property

We have a great team ready to help you achieve a quick and profitable sale, and all of our services can be tailored to suit your specific requirements. Trust our experts...

BOOK A VALUATION

Buy safely and securely

We’re partnered exclusively with Gazeal in the area, a faster, more secure home moving process that won’t leave you disappointed, uncertain, or out of pocket.

BUY SAFELY
Ramsbottom
Pearson Ferrier Ramsbottom
74 Bridge Street
Ramsbottom
BL0 9AG
MAKE AN ENQUIRY
19

All statements contained in these particulars are for indicative purposes only and are made without responsibility on the part of Pearson Ferrier and the vendors of this property and are not to be relied on as statements or representations of fact. Potential purchasers should satisfy themselves by inspection or otherwise as to the accuracy of such details contained in these particulars.

  • Mayfield, Holcombe Road, Greenmount, Bury

    4 bedrooms
    2 bathrooms
    2 receptions

    Property Features

    • substantial detached house
    • four bedrooms
    • self contained annex
    • highly regarded location
    • immaculate interior
    • ample parking, garage and gardens
    Offers Over £699,950
  • Alden Close, Helmshore, Rossendale

    4 bedrooms
    2 bathrooms
    2 receptions

    Property Features

    • substantial modern detached
    • four bedrooms
    • highly regarded area
    • large family kitchen
    • close to countryside
    • good m-way access
    • extensive local amenities
    £650,000
  • Broadhead Road, Crowthorn

    4 bedrooms
    4 bathrooms
    2 receptions

    Property Features

    • substantial stone townhouse
    • Victorian Conversion
    • 4 bedrooms/4 bathrooms
    • semi rural setting
    • highly regarded location
    • close to open countryside
    • parking & gardens
    £595,000
MAKE AN ENQUIRY
Your details

Complete your download

  • I agree to receive marketing communications and for my data to be stored as described in the Privacy Policy.

Book a free property valuation

Request a home visit from one of our team to thoroughly review your property for free.

BOOK NOW Not now

Are you thinking of becoming a landlord?

Chat with our team